Ficha
Vivienda exterior a estrenar en Recoletos.
Madrid (Recoletos) - REF. 1010

132 m2

3

3

1
venta: 2.309.000 €
Descripción

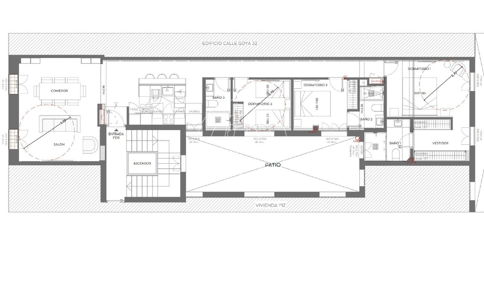
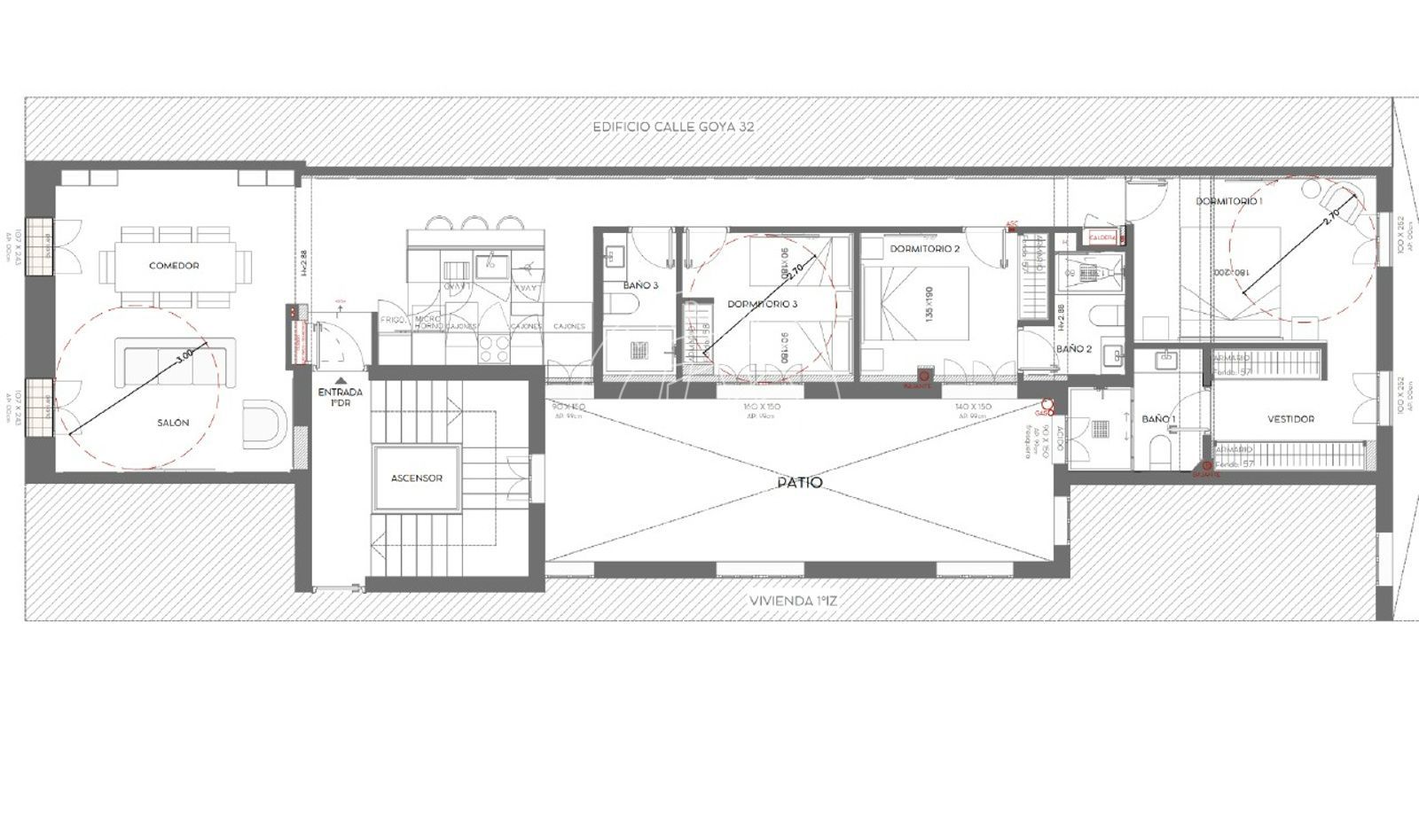
LARENA REAL ESTATE ofrece en venta esta espectacular vivienda completamente reformada y amueblada, situada en un elegante edificio clásico en pleno corazón de Recoletos, una de las zonas más exclusivas y demandadas de Madrid. Se trata de una propiedad exterior, luminosa y con una distribución moderna que combina estilo, comodidad y diseño.

Al entrar encontramos una amplia zona de salón y comedor, un espacio equilibrado y muy acogedor, perfecto tanto para el día a día como para recibir invitados. La cocina, ubicada en el centro de la vivienda, es funcional, moderna y está totalmente equipada con mobiliario a medida y electrodomésticos integrados, creando un ambiente práctico y estético al mismo tiempo.

La zona de descanso ofrece tres dormitorios amplios y bien resueltos. El dormitorio principal cuenta con un generoso vestidor y baño en suite. Los otros dos dormitorios disponen de armarios empotrados y acceso a dos baños completos adicionales, uno de ellos también en suite en el segundo dormitorio.

Entre sus comodidades destacan la calefacción central, el aire acondicionado, la reforma integral reciente y el mobiliario incluido, lo que permite entrar a vivir desde el primer día sin necesidad de realizar ningún tipo de inversión adicional. El edificio, de estilo clásico, aporta un toque de distinción y carácter que realza aún más el valor del inmueble.

La ubicación es inmejorable, en una de las calles más cotizadas de Recoletos, a escasos metros del Parque del Retiro y rodeado de las mejores boutiques, restaurantes, servicios y conexiones de la ciudad. Una oportunidad única para disfrutar de una vivienda exclusiva en una de las zonas más privilegiadas de Madrid.

Características
Precio Venta 2.309.000 €
Construidos 132 m2
Precio/m² 17.492
Dormitorios 3
Baños 3
Amueblado
Cocina Amueblada
Calefacción Central
Altura/Planta 1
Ascensor
Aire acondicionado
Calificación Energética En trámite
Escalas de eficiencia



Tu agente
Fernando Arenas
Contáctanos

Si deseas más información sobre esta propiedad, por favor, rellena el formulario.

 Sí, he leído y/o acepto las Condiciones de uso y la Política de privacidad
Inmuebles similares:
 
2.089.000 €
Ref. 1008  162 m2  3  3
Piso en venta en Madrid, con 162 m2, 3 habitaciones y 3 baños, Ascensor, Amueblado, Aire acondicionado y Calefacción Central.